Продажа дома

Калужская обл, деревня Горневская сл,

113 м²
Площадь
2
Этажность
7 сот
Площадь участка

7 050 000 ₽

62 612 ₽ за м²

ID объявления 11130014

Поделиться

Добавить в избранное

Номер в базе Агентства #23525 Новый готовый дом 112, 6 кв.м. с газом и всеми коммуникациями в деревне Горневская Слобода.

В непосредственной близости от города, в уютной деревне Горневская Слобода, продаётся готовый 2-этажный дом 112, 6 кв.м., расположенный на земельном участке 612 кв.м.

Дом построен из газоблока 400 мм D500. Фундамент - железобетонный, монолитный, комбинированный. Фасад - долговечная и неприхотливая штукатурка "Короед". Окна ПВХ Rehau 70 мм. Крыша металлочерепица. Входная металлическая дверь. Утеплённый потолок 250 мм.

Коммуникации. Газ в доме. Электричество в доме. Вода - скважина. Канализация - септик.

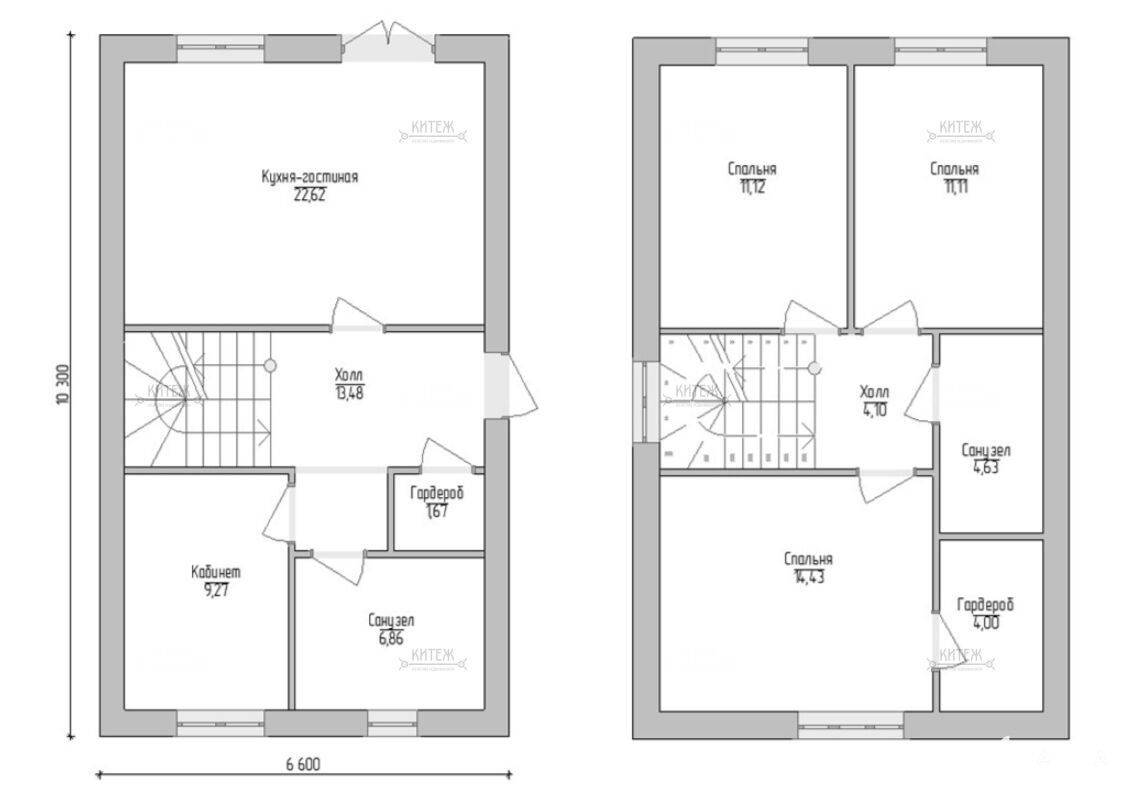
Очень удобная планировка!

На 1 этаже, помимо центрального холла, располагается гардеробная при входе, кухня-гостиная 22, 6 кв.м., кабинет, большой санузел.

На 2 этаже 3 спальни, одна из которых со своей гардеробной, и санузел.

От деревни до школы на машине 7 минут, до центра города 15-20 минут. Ходит общественный транспорт.

Звоните! Приглашаем на просмотры!

Дата обновления: 25 января 2025