Продажа дома

Калужская область, с Воскресенское, ул Наследия, 11

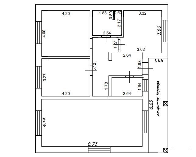
110 м²
Площадь
55 м²
Жилая площадь
25.00 м²
Площадь кухни
1
Этажность
9 сот
Площадь участка

6 690 000 ₽

60 819 ₽ за м²

ID объявления 12090692

Поделиться

Добавить в избранное

Арт. 87924439. Вашему вниманию — одноэтажный дом 120 м² по адресу:
Калужская область, Ферзиковский район, село Воскресенское.

Дом подходит под семейную ипотеку со ставкой 6%.
Подведены все городские коммуникации: газ, электричество, вода, канализация.

ОБЩАЯ ИНФОРМАЦИЯ

Просторный одноэтажный дом площадью 120 м², расположенный в живописном селе Воскресенское. Идеальный вариант для постоянного проживания или дачи с возможностью круглогодичного использования. Участок находится в обжитом, спокойном месте с хорошей транспортной доступностью.

КОНСТРУКТИВ И КОМПЛЕКТАЦИЯ

Дом построен по современным технологиям с использованием качественных материалов и надёжных конструктивных решений:

Фундамент: свайно-ростверковый, бетон марки М250 — обеспечивает устойчивость даже на сложных грунтах.

Стены: газобетонные блоки «Калужский» толщиной 375 мм с армированием каждые четыре ряда.

Облицовка: лицевой кирпич Воротынского завода (коллекция «Картен») — эстетика и долговечность.

Перемычки: железобетонные, утеплённые, заводского изготовления — надёжность и энергоэффективность.

Армопояс: неразрывный, железобетонный, утеплённый — обеспечивает равномерную нагрузку на стены и устойчивость кровли.

Кровля: четырёхскатная, утеплённая минеральной ватой 200 мм, с установленной системой ливневого водоотвода и софитами.

Окна: двухкамерные ПВХ-стеклопакеты на 70-м профиле — теплоизоляция и шумоподавление.

Инженерия: выполнена разводка внутренних канализационных сетей; подключены газ, электричество, водоснабжение и центральная канализация.

ИНФРАСТРУКТУРА И РАСПОЛОЖЕНИЕ

Село Воскресенское — благоустроенная территория с развитой инфраструктурой:

Магазины, школа и детский сад в шаговой доступности;

Хорошая транспортная связь с Калугой и Москвой;

Живописная природа, чистый воздух и спокойная атмосфера — всё для комфортной жизни за городом.

ПОКАЗ И КОНТАКТЫ

Дом готов к осмотру в удобное для вас время.
Звоните — договоримся на показ!

Дата обновления: 28 сентября 2025